The Future Fearon Project
Fearon Community Association has been awarded £925,000 from the NHS to develop the community spaces at Fearon Hall. The funding will allow us to make significant building improvements, and enable us to expand our community programming, increase access to mental health and wellbeing services through our Hello Help Hub project, and create new opportunities for local engagement.
The investment forms part of the NHS Long Term Plan, which aims to move away from traditional models of care towards integrated, locally delivered services that meet people’s needs earlier and closer to home. This approach is designed to provide better access to support and improve outcomes for individuals within their communities.
Fearon Hall has long served as a safe, inclusive space for residents of Loughborough, offering opportunities for learning, social connection, and wellbeing. This partnership represents a major milestone in the NHS’ and Fearon Community Association’s commitment to building resilient, healthy neighbourhoods.
Explore the plans
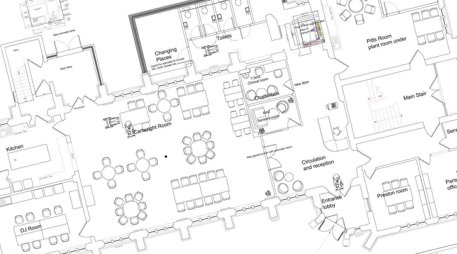
Take a look at our draft design proposals.
Pdf download
Watch an animation of the ground floor.
Video on YouTube
Your questions answered
Our neighbourhood meeting and consultations on Thursday 26th February and Saturday 28th February with our neighbours and Hall users highlighted the following questions about The Future Fearon Project.
About the funding and investment
local What is The Future Fearon Project?
The Future Fearon Project is the name given to the project that will deliver the building improvements at Fearon Hall through the NHS £925k investment. This includes our public consultations, development of the plans for improvements and construction.
What is The Hello Help Hub at Fearon Hall?
The Hello Help Hub at Fearon Hall is an existing project led jointly by the NHS and Fearon Community Association (FCA) from Fearon Hall – every Wednesday between 2pm and 5pm. It aims to provide a friendly one-stop drop-in place for help, health and wellbeing. For those looking for professional led help with physical or mental health, housing, finances, benefits, social support and other specialist services. Or just a safe space, a chat and cuppa. It is a collaborative approach between the NHS, FCA and other local voluntary sector and community partners.
The improvements to the building delivered through The Future Fearon Project will allow us to provide expanded services and opening times for The Hello Help Hub at Fearon Hall in a significantly improved and more suitable building environment. The improved facilities will also allow us to offer more opportunities and better access for our wider offering of community activities and room hire.
Who is leading The Future Fearon Project?
The project is a joint initiative between Leicestershire Partnership NHS Trust (LPT) and Fearon Hall Community Association (FCA). LPT has received the money from NHS England.
Why has this funding been awarded?
The funding has been awarded to enhance the current facilities at Fearon Hall which will subsequently lead to an expansion of the existing health and wellbeing services that are delivered from it.
The NHS recognised the work already being done at Fearon Hall by FCA and how it aligned with the NHS 10-year plan to bring care closer to the community. The local NHS identified that an investment in a trusted local community building like Fearon Hall was an ideal opportunity to provide people access to care in a safe, welcoming, and non-clinical environment. The joint-collaboration to deliver these services is The Hello Help Hub at Fearon Hall.
How much funding has been received?
Approximately £925,000 has been secured to invest in improvements to Fearon Hall and expand the support available there. This is capital funding which means it must be spent on making physical improvements to the building, rather than being spent on the day to day running costs.
What is the purpose of the investment?
The funding will:
- Enhance and improve the building
- Increase the number of people who can access support
- Provide spaces for one-to-one support, group sessions, and social activities
- Make the building more accessible (including lift access to upstairs areas)
The goal is to reduce isolation and support recovery by creating a warm, welcoming space within the community.
The funding has been secured as part of the NHS’ Neighbourhood Mental Health Centre programme which is an initiative by NHS England aimed at improving mental health care for adults in England. It focuses on creating continuous support for individuals with mental health needs and is part of the NHS’ long-term plan, ‘Fit for the Future’ which aims to provide more support for people in their local community.
Has planning permission been applied for?
Yes. Planning permission has been submitted.
The front elevation will see very minimal changes, and most alterations will be subtle and respectful of the building’s historic appearance.
What is the long-term vision?
The long-term aim is to:
- Make the entire building fully accessible
- Create flexible, high-quality spaces
- Support a wider range of community and professional partners
- Preserve the historic character of the building
- Future-proof the hall for future users
The project enhances the building’s ability to serve the community while respecting its heritage and identity.
About the changes to the building
Who is leading the building design?
The architectural design is being led by Richard Thorpe of CPMG Architects. Richard is a long-term user of the hall and trustee of Fearon Hall Community Association. He is an experienced architectural designer and is supported by a full professional team, including:
- A structural engineer
- Mechanical and electrical engineers
- A cost consultant
This ensures the project meets professional, safety, and regulatory standards.
How old is the building?
Fearon Hall was built in two phases between 1888 and 1913. While it is structurally sound and in good order, parts of the building are not currently fit for modern accessibility and service requirements.
All works are being carried out in consultation with the landlord (The Parish Church: All Saints with Holy Trinity), with the goal of future-proofing the building for generations to come.
Who owns the building?
The Hall is leasehold. The Community Association does not own the building but acts as custodians. The building is owned by the local parish church, All Saints with Holy Trinity.
When is the building work expected to start and finish?
Subject to planning permission, we aim to be onsite in July 2026 and finish February 2027.
Works will be phased:
- Temporary screen and toilets
- Lift installation and toilet block
- Ground floor works
- Upper floor and rear section
How long will the building work take?
The current estimate is approximately six months of construction.
The provisional timeline suggests work could begin around late July and continue through to February 2027, subject to final approvals and contractor arrangements.
How will the construction work be managed?
The project will be completed in phases to minimise disruption:
- Install a screen to separate reception from construction areas
- Build the new toilets and install the lift
- Complete remaining ground floor works
- Finish the rear section of the first floor
This phased approach keeps the building usable throughout the works.
What are the proposed changes to the building?
The major changes to the building will be new toilets, ‘changing places’, a lift to the first floor, room reconfiguration and a more welcoming reception area. These are all subject to planning permission.
The existing toilets:
- Are too small and difficult to use
- Do not meet current legislation
- Include a disabled toilet that is not fit for purpose
The new design includes:
- A new toilet block with four properly sized cubicles
- Gender-neutral facilities
- A fully equipped Changing Places room (with toilet, shower, hoist, and changing couch)
- Improved safeguarding arrangements so adults and children do not share facilities
This ensures the building is inclusive, accessible, and compliant with modern standards.
What changes are planned upstairs?
Upstairs improvements include:
- A lift for full accessibility
- Reconfigured and improved toilet facilities
- A new large meeting room
- A smaller office space
- Fire-rated lobby improvements for safety
- Improved privacy using glazed screens instead of solid walls (to preserve the feel of the ballroom)
Some underused space will be transformed into usable offices or community rooms.
Will the ballroom on the first floor be lost?
No. The Ballroom will remain largely unchanged.
Instead of installing full-height walls, partial glazed screens will provide privacy while preserving the openness and visual impact of the space.
Will the building remain open during construction?
Yes. The Hall will operate as a live site, meaning activities, including NHS-related services will continue.
- Some rooms may temporarily change location
- Noise mitigation measures will be implemented
- Contractors will be experienced in working on live sites
- Ongoing communication will address any issues quickly
The aim is for “business as normal” wherever possible.
There may be occasional short closures (e.g. long weekends), but disruption will be kept to a minimum.
Will the character of the building change?
No. The aim is to improve, not alter, the identity of Fearon Hall.
Key heritage features will be retained wherever possible, including:
- Original timber doors
- The ballroom space
- The overall front elevation
External changes will be minimal, with only modest additions such as a new door and a small toilet extension at the rear.
Will the external appearance of the Hall change?
Changes will be minimal and respectful.
- No noticeable changes on Rectory Road.
- Subtle new side entrance doors.
- Rear elevation will change but be kept low in height.
The intention is to enhance the building without compromising its character.
Have the NHS been consulted on the proposed changes?
The Leicester, Leicestershire and Rutland Integrated Care Board approved the award of the capital grant. The Leicester Partnership NHS Trust is working closely with Fearon Hall and the architect through its Health and Safety Officers and Estate Planner. Together they will ensure the building can be accessed by NHS teams and that it meets their requirements.
Will the improvements reduce costs and increase energy efficiency?
The new parts of the building will be built to modern standards and will be energy efficient. Currently the biggest energy related problem is drafts from the front door. The new doors will overcome this.
Longer term a solar array on the roof may be desirable, this will require approval from Charnwood Borough Council.
What will be done to manage parking at Fearon Hall and in the neighbouring streets?
We are committed to encouraging Hall users to park in public car parks near to the Hall wherever possible. We are also encouraging people to walk or cycle to the Hall and to use public transport. Our website is undergoing redesign. Travel and parking advice will be a key element on the new website and in Hall communications.
During the building work, there will be operating procedures in place which will form part of the contract with the construction teams. These will cover parking, deliveries, site operating hours etc. We will share details on our website when the procedures have been drawn up. Deliveries to site will be necessary, but there will be no construction parking in the immediate vicinity.
We have a working group considering travel and parking. If you would like to join this group and help us formulate plans please email us.
About the NHS project at Fearon Hall
Is Fearon Hall becoming a hospital?
No. Fearon Hall will not become a hospital or clinical facility.
This project enhances the existing community centre so it can continue its current work while offering additional specialist support within a familiar and trusted setting.
What makes this project unique?
This initiative is part of an NHS funded national pilot programme, with only nine pilot areas across the country.
What makes this approach unique is that it invests directly in the local voluntary sector, using an established and trusted community space rather than creating a new clinical site.
Why use Fearon Hall instead of hospital settings?
Many people find hospital environments intimidating or off-putting.
Fearon Hall is already a trusted community space where people feel comfortable walking through the door without needing to have an appointment. By offering support in this setting, more people are likely to seek help when they need it.
Will Fearon Hall still be a community centre?
Yes. Fearon Hall will remain a community centre.
The investment will enhance the space and the support available but preserves its identity as a welcoming, community-led environment.
What services are already available at Fearon Hall?
Fearon Hall already delivers a wide range of community support services and will continue to do so.
In addition to The Hello Help Hub at Fearon Hall, there is the community Café in the Hall, art groups, sewing, knitting and craft sessions, bingo, grief café, gaming groups, lunch and breakfast clubs, exercise classes, food and growing initiatives and a wide selection of community groups delivering their projects from Fearon Hall.
Will mental health professionals be available on-site?
Yes. The project includes closer working with the Charnwood Neighbourhood Mental Health Team (NMHT), enabling more specialist mental health support to be delivered within Fearon Hall for people who may be struggling but prefer a non-clinical, more informal setting.
How will this benefit the local community?
The project aims to:
- Reduce isolation
- Improve wellbeing and recovery
- Promote citizenship and belonging
- Make support easier to access
- Strengthen community partnerships
Ultimately, it builds on what Fearon Hall already does well – supporting local people – while expanding its capacity to help even more individuals.
Will there be private consultation rooms?
Yes. The redesign includes three consultation rooms on the ground floor, which can be used for:
- One-to-one mental health support
- Conversations with community leaders
- GP consultations or minor examinations
- Vaccinations or semi-clinical appointments
One room will be softly furnished for a calming, sensory environment, while another will have a more clinical setup with a washbasin.
Will children and young people still be prioritised?
Yes. The redevelopment will increase flexibility for children and young people’s activities.
Improvements will allow:
- Better use of the ballroom space
- Simultaneous use of the café and activity areas
- More flexible planning for events and group sessions
Latest news on The Future Fearon Project
Community voices come together to help shape the future of Fearon Hall
More than 65 people came together at our recent neighbourhood meetings to share their thoughts on the future of Fearon Hall.
The Future Fearon Project – drop-in viewing
View our Future Fearon Project plans and have your say at our drop-in viewing on Saturday 28th February 2026.
The Future Fearon Project – neighbourhood meeting
Register your interest in our Future Fearon Project plans and have your say at our neighbourhood meeting on Thursday 26th February 2026.
Have your say on The Future Fearon Project
Tell us what you think about our investment from the NHS and our building plans for Fearon Hall.
The Future Fearon Project

